来源:新房圈 作者:熊先生
2020-09-26 13:56:54
银湖背靠银湖山,面对笔架山,作为深圳传统豪宅名片,近年来少有新盘推出。目前深圳新兴多个豪宅片区,如华侨城、蛇口等,银湖片区内多为老社区,次新房仅有华润银湖蓝山,位于北环大道旁的缙山府即将推出,银湖将再次进入购房者视线中。
1、区位交通
缙山府位于北环大道东侧,泥岗西路辅路及金碧路的交汇处,紧靠地铁6号线和9号线银湖地铁口B口,与地铁口隔金碧路,处于福田和罗湖的交界处。

轨道交通方面,9号线、6号线均已开通,9号线直通福田、南山核心区域,可换成1号线、3号线、4号线、7号线、11号线;6号线通向龙华深圳北、光明凤凰城等热点区域,地铁出行便捷。距离在建的地铁14号线快线黄木岗站,2个站可换乘 。地铁出行十分便捷。

*6号线、9号线地铁口实拍
公交方面,缙山府临近深圳银湖汽车站,银湖汽车站是目前全市客运班线最多班次最密集的长途客运站,是深圳市主要汽车站之一。其门口的银湖汽车站公交站台公交路线也较多,可通达全市各个区域,包括跨区域的公交快线,公交出行相对便捷。

*公交站点示意
道路交通方面,缙山府紧靠北环大道,作为深圳交通主动脉之一,北环大道东西衔接,通往福田、南山、宝安。同时紧靠坂银大道出入口,坂银通达坂田,属深圳中部快捷通道。另经北环大道到泥岗东路可达清平高速,出行交通脉络网丰富。


*周边道路实况
推荐指数:★★★★☆
小结:缙山府拥有完善的公交路线网和轨道交通网,门口即市政主交通干道,出行十分便捷。不过高峰期难免拥堵,来往车辆较多造成的的粉尘和噪音污染也比较大。
2、楼盘信息
缙山府的开发商为深圳市君兆泥岗投资发展有限公司,从资料显示,开发商成立于2013年年底,目前所查资料不太多,从项目来看,目前缙山府是其在深圳的首个项目,据悉在上海和长沙开发过商业项目。从相关企业查询平台看到如下风险提示信息。

缙山府占地3.45万㎡,规划建面11万㎡,共分两期开发,将建成8栋围合式高层,规划总套数为1006套。据了解,一期南区(南+西地块)建设规模约8.5万㎡,共有602套房源,其中1栋30层综合楼,高约95米,临近北环;2栋为30层住宅楼,高约87米;3栋、4栋为40层住宅,高约117米,南向临近深圳中学新高中部;
二期北区建设规模约8万㎡,将由404套房源,由4栋高层住宅塔楼组成,其中5栋/8栋地下3层地上40层,高约119米,6栋/7栋地下3层地上37层,高约119米。
缙山府的容积率为3.3,绿化率达40%。



一期的楼栋梯户比,主要为2梯4户,其中1栋是4梯8户。

缙山府一期二期规划总车位数为880辆,一期停车位为453辆(其中地上272辆,地下181辆);二期停车位为427辆。整体车位比约1:0.87。

推荐指数:★★★☆☆
小结:缙山府分两期规划,目前均已动工,一二期组成围合式小区,有力于未来形成良好的小区氛围。两个地块之间有一条河道,将打造成园林景观。不过一般的河道治理需要较大的成本,建好后也是一道特有的自然景观。值得一提的是项目车位比不足,虽说临近有较好的公共交通,对于目前基本家家户户必备起码一台代步车而言,车位不足多少会影响居住体验。
3、施工进度
缙山府前期在金光华有开放展示,不过目前已经撤展,据现场工作人员称10月将开放现场营销中心及样板间,具体时间尚未确定。目前楼栋正在施工中,均已建至10层左右,二期同步施工中。



推荐指数:★★★☆☆
小结:缙山府相对来说施工进度还是比较快,预计在4季度一期、二期都会推出来,首期推一期,目前交房时间尚未确定。
4、户型信息
缙山府一期主推84-106㎡住宅,主推一步到位3房和改善4房,据了解一期93㎡有270套,106㎡约140套,84㎡约192套,目前主推的三个户型户型图已经公开、
A1户型约84㎡ 2+1房2厅1卫

该户型位于1栋,临着北环大道,从户型示意图来看,是比较经典的3房户型,整体布局方正合理。餐客厅一体化,客厅连接景光阳台;厨房预留冰箱位置,生活阳台有预留洗衣机位置,整体的生活细节比较到位。不过从示意图来看,厨房和两个次卧的空间较紧凑。
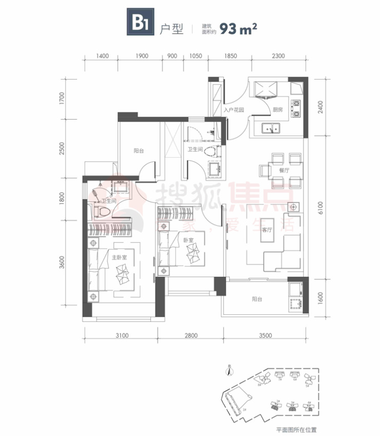
B1户型约93㎡ 2+1房2厅2卫

该户型位于2栋、3栋、4栋,西南朝向不看花园,同样是2+1房设计,带有入户花园,L型厨房预留冰箱位置,不过从户型示意图来,厨房不带窗户也没有连接生活阳台,生活中采光或有一定影响。餐厅和客厅一体化,客厅连接景观阳台,空间尚可。主卧和次卧带有飘窗,便于采光。
C1户型约106㎡ 3+1房2厅2卫

该户型主要位于2栋、3栋、4栋,看花园,整体布局方正,功能分区明显。入户玄关设计,直通卧室入口,进门则有卫浴及洗手台,便于日常洗漱;横厅设计,餐厅连接飘窗设计便于空间采光,且连接厨房,缩短传菜时间;厨房L型设计,预留较大的冰箱位置;客厅连接景光阳台,景光阳台进深达1.9米,开间达3.8米,居住舒适度较高。主卧空间阔绰,带有独立衣帽间和卫浴,不过两个次卧的空间较为紧凑;
推荐指数:★★★☆☆
小结:截止到发稿前,缙山府尚未确定是否带装修或毛坯交付。从户型结构来看,户型整体都是方正且功能布局合理,次卧普遍空间紧凑甚至不足;93㎡户型厨房无窗户采光或受影响。具体的以开发商现场样板间为准,意向购买的购房者可在样板间开放后去体验。
5、价格对比
目前缙山府周边多为旧生活区,在二手房平台所展示的房源价格在4.7-6.6万/㎡之间,近年的次新房华润银湖蓝山二手房报价超过10万/㎡,而临山临湖豪宅的报价则在12万/㎡上下。


*数据来源于链家
不过圈圈认为周边的旧小区二手房报价及华润的次新房对缙山府的参考性都不太大,综合缙山府的位置及整体的产品来看,预计在8万/㎡上下。目前缙山府尚未明确交付方式以及交付时间,是否带装修对房价有影响,具体的房价以开发商最终备案价格为准。
推荐指数:★★★★☆
小结:缙山府周边少有的新盘,目前周边价格的参考度都不太大,从产品类型来看,缙山府主打为刚需上车项目,预计售价在片区内来说不会太高,想要在片区改善置业的购房者可以多加关住。
6、周边配套
(1)学区学校
缙山府目前学区划分小学为凤光小学和笋岗中学。


凤光小学属于广东省一级学校,成立于创办于1990年,现有32个教学班,学生1689人,据了解近80%的学生为外来工子女。缙山府到风光小学距离约1公里,距离一个地铁站(6号线泥岗站)。

深圳市笋岗中学创办于1992年,是广东省一级学校。从地图显示,缙山府距离笋岗中学直线距离约1.5公里,公交路程约6分钟,由于路况原因,自驾显示需要4公里。从升学率来看,根据相关报道,在罗湖2020年的初中升学率笋岗中学排名第五。

*截图来源于网络页面
总的来说,片区内的教育质量相对来说不是很突出,到学校的距离不远不近,小区内没有规划幼儿园教育配套,据现场置业顾问称步行10分钟内有幼儿园。
目前在华润银湖蓝山的西侧在建有银湖二小(暂定名:未来学校),规划建成九年一贯制公办学校,建成后将提供学位1680个,其中小学24班、学位1080个,初中12个班、学位600个。目前尚未投入使用,建成后或能提高片区教学环境。具体教育划分以当年教育公示为准。

*银湖二小效果图来源于网络
在缙山府东侧,为深圳中学泥岗校区,作为深圳名校之一,也算是一个教育配套景观。
(2)商业配套
缙山府周边多为旧旧生活区,临近无大型商业配套,短期内可借享华润银湖蓝山的商业,未来地铁1站借享岁宝壹品的商业配套,岁宝壹品规划有5万㎡集中式商业,为5层裙楼商业及地下商业廊。另外通过地铁9号线、6号线也可通往其他商业中心区。

*岁宝壹品商业效果图
(3)休闲环境
银湖片区生活环境在市区可以说是数一数二的,缙山府前有笔架山,后又银湖山,均临近登山口,休闲环境尚可。另外小区将途径的河道将修整成河道景观。

*缙山府园林效果图,来源于开发商
另外距离缙山府地铁一站之远的深圳市体育中心目前正在提升改造,新建面积约32万㎡,维修改造面积约9万㎡,预计2022年6月整体竣工。改造完成后,市体育中心由体育馆、体育场、游泳跳水馆、网羽中心、体育运动长廊等配套全民健身公共设施、及相关配套空间组成。新建的体育馆可同时容纳一万五千名观众的综合馆。

*深圳市体育中心改造效果图
通过深圳市体育中心也可以享受空中连廊直通福田商业中心区。

*空中连廊示意图
总结:
优势:
1、交通便捷。公共、自驾都有较好的市政配套,紧靠地铁口及市政主交通干道;
2、周边景观资源丰富,临近因银湖生态区;
3、片区内新盘较为稀缺,难得有新房补货;
不足:
1、紧靠北环大道,难免遭受噪音及粉尘污染,尤其是紧靠路边的1栋;
2、片区内教育质量一般,新建学校的教育情况有待考验;
3、临近周边多旧生活区,整体商业配套和外部环境有待提升改善。
罗湖今年蝶变回归的话题不少,在城市更新上也大有动作,缙山府相对于罗湖的地段来说没有太多的优势。在接下来,罗湖将有多个新盘推出,其中不乏华润、京基等大型房企,如此看来,缙山府的市场竞争压力也是不小的。
了解更多深圳新房最新资讯、折扣特惠,加熊先生微信号:SCY22590。