描述
经纪人对房源的见解
【峰晟大厦】
——清水河片区地标建筑——
项目基础信息
【项目地址】:深圳·罗湖·清水河五路12号(清水河五路与环仓路交汇处)
【建筑面积】:计容建筑面积30220㎡
【物业类型】:新型产业用房约2.9万㎡,商业1000㎡
【楼体高度】:150米
【楼 层 数】:地上32层,地下3层
【产权年限】:50年(2020年-2070年)
【标准层面积】:约900㎡
【写字楼层高】:标准层高(6-32层)4.5米,3-4层9米
【主力户型】:建面约450㎡,可组合购置
【预计交付时间】:现楼已完成交付
项目价值点
•清水河片区是市政府授牌的“人工智能产业基地”,位于“大梧桐新兴产业带”,重点发展人工智能、生命健康、新一代信息技术等战略性新兴产业,承载着罗湖产业转型升级和城区核心功能外溢的重要使命,成为罗湖形成“南金融商贸、北科技创新”错位发展格局的重要引擎。
•步行见站 |步行至14号线罗湖北站约100米;
•站城枢纽 | 集14号快线、规划17号线、规划25号线及深汕高铁为一体;
•湾区通勤 | 湾区1小时通勤圈,一站至西丽高铁换乘,单线直达深汕合作区。
•千米见园 | 南联红岗公园,西享银湖山景。
•产城联动 | 产城融合项目大力推动,整体环境亟待提升(中粮·罗湖大悦城、中粮·智慧医疗科技城、华润旧改等)。
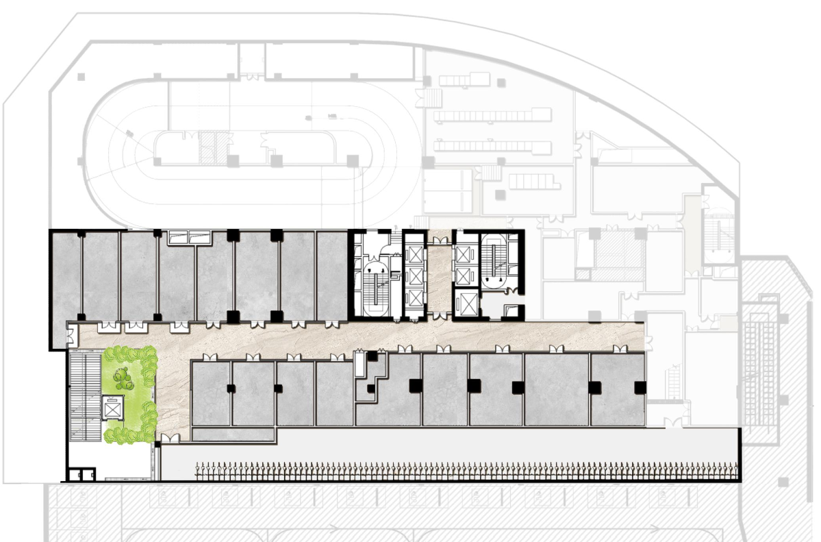
精品商业街巷(负一层)
广场绿化,闹中取静的小天地
净宽4.5m, 多样门面迎客首选
径深6-9m, 层高5.1m的规整空间
面积22㎡-44㎡可供选择
以小户型体量,轻松入驻核心商圈
首层研发用房(LG)
幕墙全明采光
单间套内460-510㎡
6m层高 高度造就多样化办公空间
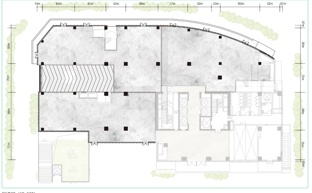
标准层(6F-32F)
南北通透 一梯两户 紧凑错落
规整布局 功能区域分布清晰
单间建面450㎡
4.5m层高 赋能产业空间多样格局
建筑年代:
楼栋总数:
开发商:
25000万元
此小区如有新消息,我们会及时通知您
描述
经纪人对房源的见解
【峰晟大厦】
——清水河片区地标建筑——
项目基础信息
【项目地址】:深圳·罗湖·清水河五路12号(清水河五路与环仓路交汇处)
【建筑面积】:计容建筑面积30220㎡
【物业类型】:新型产业用房约2.9万㎡,商业1000㎡
【楼体高度】:150米
【楼 层 数】:地上32层,地下3层
【产权年限】:50年(2020年-2070年)
【标准层面积】:约900㎡
【写字楼层高】:标准层高(6-32层)4.5米,3-4层9米
【主力户型】:建面约450㎡,可组合购置
【预计交付时间】:现楼已完成交付
项目价值点
•清水河片区是市政府授牌的“人工智能产业基地”,位于“大梧桐新兴产业带”,重点发展人工智能、生命健康、新一代信息技术等战略性新兴产业,承载着罗湖产业转型升级和城区核心功能外溢的重要使命,成为罗湖形成“南金融商贸、北科技创新”错位发展格局的重要引擎。
•步行见站 |步行至14号线罗湖北站约100米;
•站城枢纽 | 集14号快线、规划17号线、规划25号线及深汕高铁为一体;
•湾区通勤 | 湾区1小时通勤圈,一站至西丽高铁换乘,单线直达深汕合作区。
•千米见园 | 南联红岗公园,西享银湖山景。
•产城联动 | 产城融合项目大力推动,整体环境亟待提升(中粮·罗湖大悦城、中粮·智慧医疗科技城、华润旧改等)。
精品商业街巷(负一层)
广场绿化,闹中取静的小天地
净宽4.5m, 多样门面迎客首选
径深6-9m, 层高5.1m的规整空间
面积22㎡-44㎡可供选择
以小户型体量,轻松入驻核心商圈
首层研发用房(LG)
幕墙全明采光
单间套内460-510㎡
6m层高 高度造就多样化办公空间
标准层(6F-32F)
南北通透 一梯两户 紧凑错落
规整布局 功能区域分布清晰
单间建面450㎡
4.5m层高 赋能产业空间多样格局
展开