怀德城德懿府-德望府 在售 开盘通知
低密居住
均价: 房价待定
地址: 深圳市宝安区福永大道与怀德南路交汇处
售楼处:400-993-0680 最新价格、政策行情、楼盘优惠信息等可咨询
  • 组团砍价

    人多力量大,团购更优惠

    立即报名
    279人已报名
  • 预约看房

    一对一服务,解答更详细

    立即报名
    167人已报名
楼盘详情
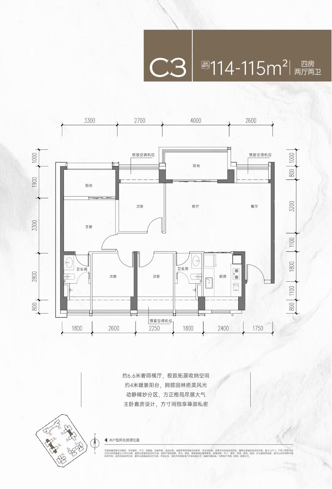
  • 主力户型:德懿府在售95-140平3-4房,加推德望府99-199平3-4房
  • 开  发  商: 深圳市怀德房地产开发有限公司
  • 开盘时间:2024年09月30日
  • 交房时间:暂无信息
  • 产权年限:70
  • 预售许可证: 暂无信息
楼盘动态
我们将以短信通知您全新楼盘动态,足不出户知房事
周边配套
759