卓能雅苑 在售 开盘通知
小户型低密居住宜居生态养生社区
均价: 房价待定
地址: 布龙公路与油松路交界处
售楼处:400-993-0680 最新价格、政策行情、楼盘优惠信息等可咨询
  • 组团砍价

    人多力量大,团购更优惠

    立即报名
    279人已报名
  • 预约看房

    一对一服务,解答更详细

    立即报名
    167人已报名
楼盘详情
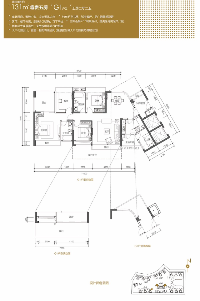
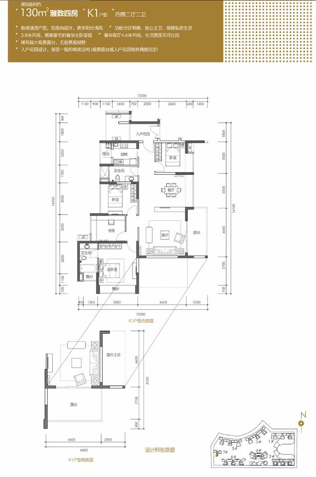
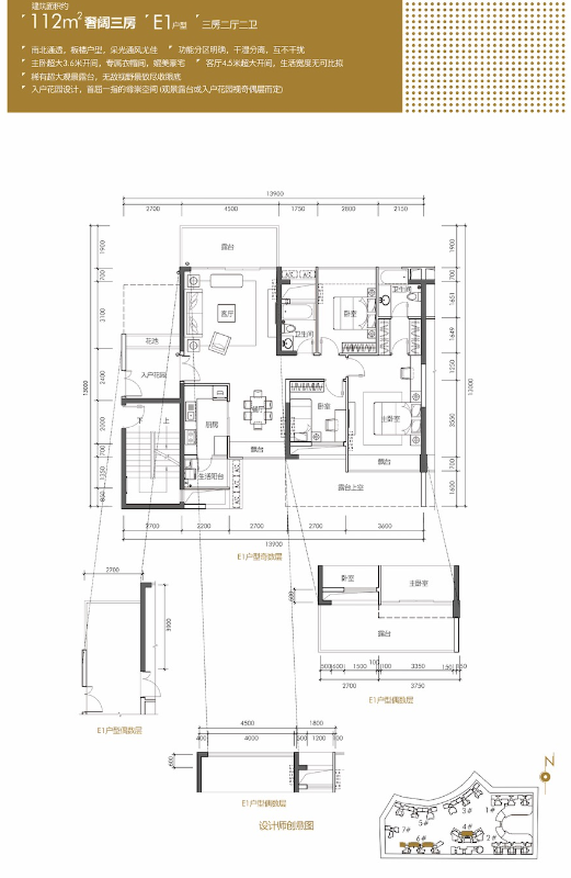
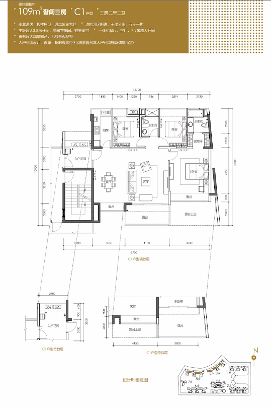
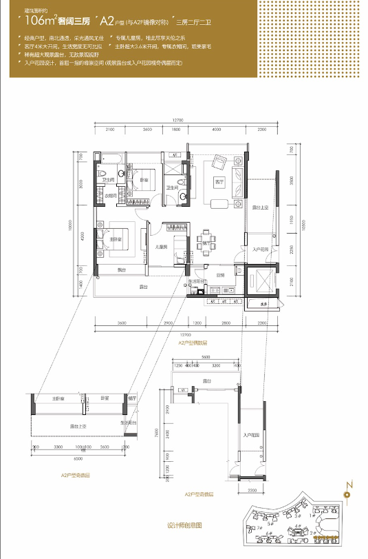
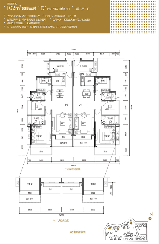
  • 主力户型:二居(建面78.0㎡) 二居(建面77.0㎡) 三居(建面113.0㎡)
  • 开  发  商: 雄伟房地产开发(深圳)有限公司
  • 开盘时间:2015年12月09日
  • 交房时间:2016年11月07日
  • 产权年限:70
  • 预售许可证: 深房许字(2015)龙华023号
楼盘动态
我们将以短信通知您全新楼盘动态,足不出户知房事
周边配套
1088