盛荟创智产业中心 在售 开盘通知
低密居住
均价: 房价待定
地址: 深圳市龙华区大浪街道英泰路与华盛路交汇处
售楼处:400-993-0680 最新价格、政策行情、楼盘优惠信息等可咨询
  • 组团砍价

    人多力量大,团购更优惠

    立即报名
    279人已报名
  • 预约看房

    一对一服务,解答更详细

    立即报名
    167人已报名
楼盘详情
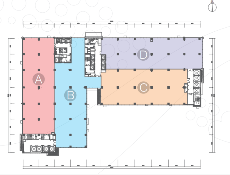
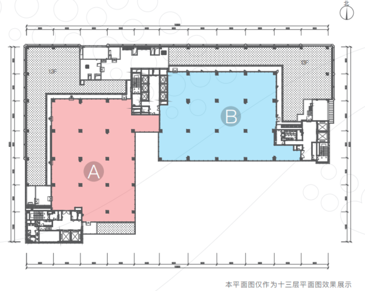
  • 主力户型:【建筑面积】约1212-4960㎡
  • 开  发  商: 深荟集团
  • 开盘时间:暂无信息
  • 交房时间:2024年08月31日
  • 产权年限:产权年限50年(22-72)
  • 预售许可证: 暂无信息
楼盘动态
我们将以短信通知您全新楼盘动态,足不出户知房事
周边配套
223