康利乾城 在售 开盘通知
均价: 房价待定
地址: 深圳市·龙岗区·布澜路14号线石芽岭站K出口
售楼处:400-993-0680 最新价格、政策行情、楼盘优惠信息等可咨询
  • 组团砍价

    人多力量大,团购更优惠

    立即报名
    279人已报名
  • 预约看房

    一对一服务,解答更详细

    立即报名
    167人已报名
楼盘详情
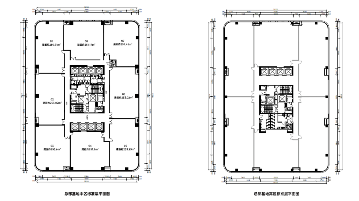
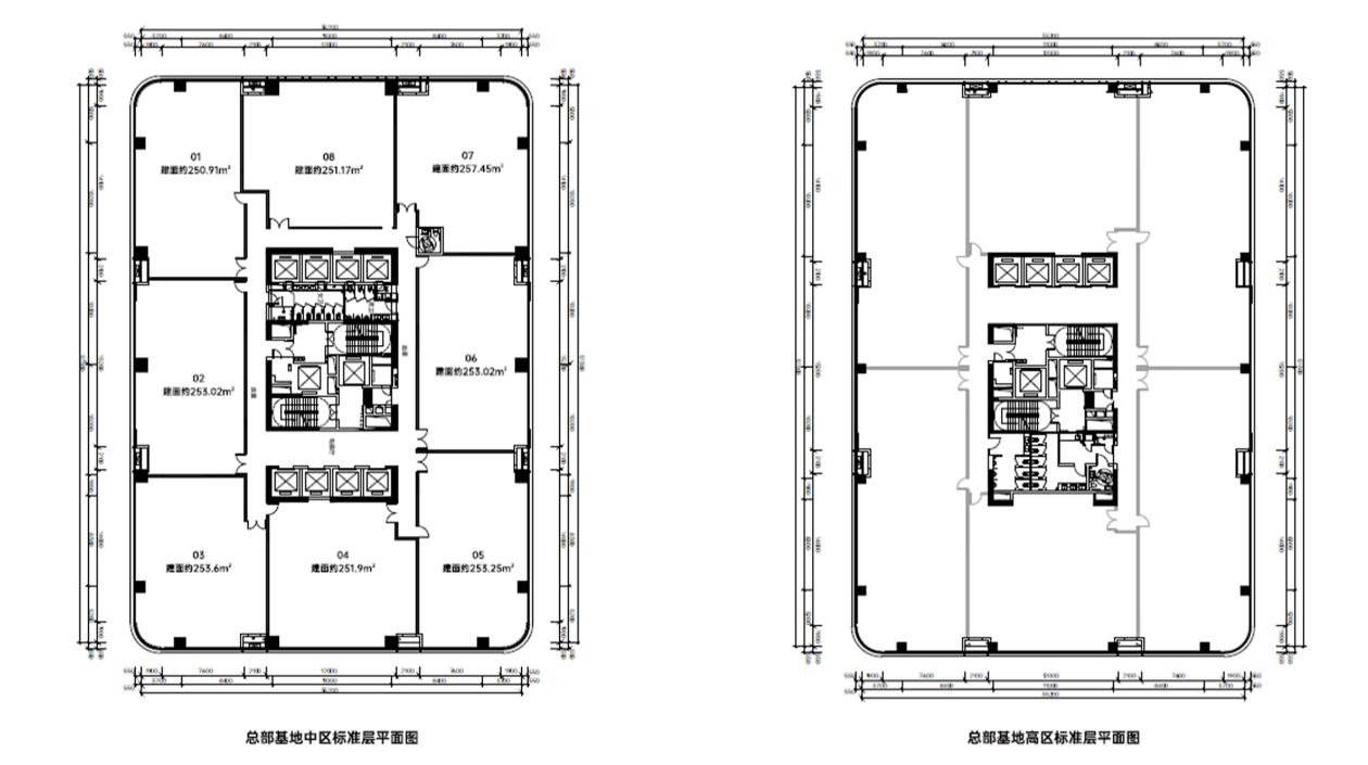
  • 主力户型:在售约251-362㎡写字楼,在售28-53㎡公司名义购买公寓
  • 开  发  商: 深圳康利置业有限公司
  • 开盘时间:暂无信息
  • 交房时间:暂无信息
  • 产权年限:50年产权独立红本
  • 预售许可证: 暂无信息
楼盘动态
我们将以短信通知您全新楼盘动态,足不出户知房事
周边配套
530