旭生融和谷 在售 开盘通知
宜居生态
均价: 房价待定
地址: 深圳市宝安区宝振路与悦和路交汇处
售楼处:400-993-0680 最新价格、政策行情、楼盘优惠信息等可咨询
  • 组团砍价

    人多力量大,团购更优惠

    立即报名
    279人已报名
  • 预约看房

    一对一服务,解答更详细

    立即报名
    167人已报名
楼盘详情
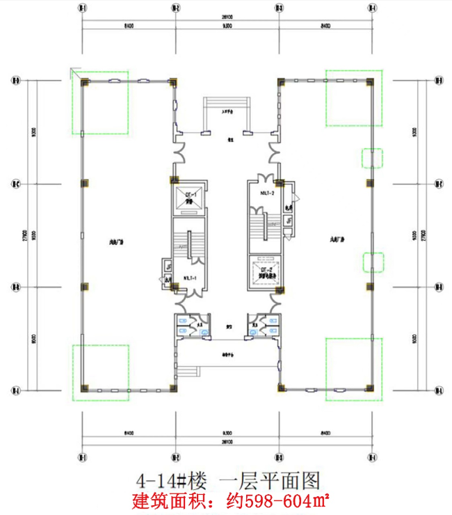
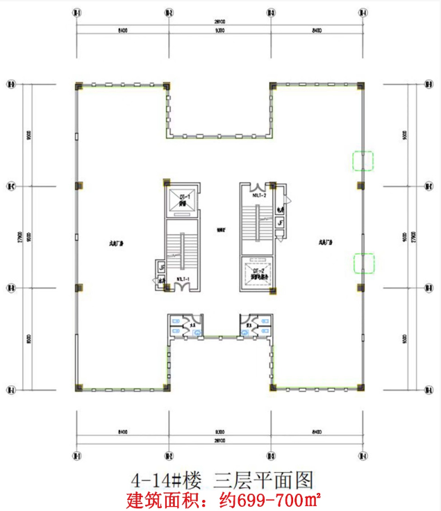
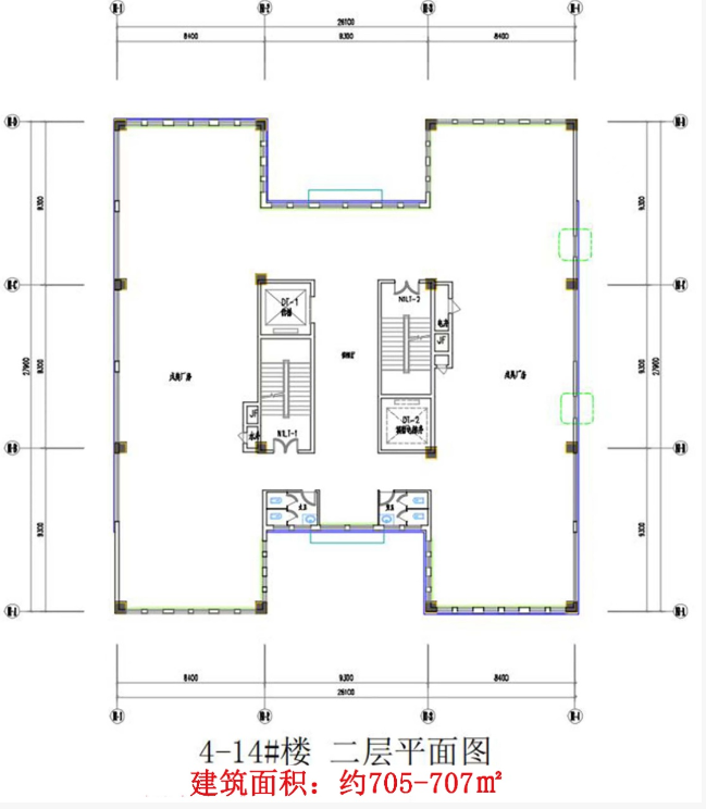
  • 主力户型:写字楼面积段:425-545平,在售独栋厂房:2600平
  • 开  发  商: 深圳市旭生发展有限公司
  • 开盘时间:2020年12月31日
  • 交房时间:2023年12月31日
  • 产权年限:50
  • 预售许可证: 深房许字(2020)宝安037号
楼盘动态
我们将以短信通知您全新楼盘动态,足不出户知房事
周边配套
202