前海鸿荣源中心办公B座 在售 开盘通知
均价: 房价待定
地址: 深圳市南山区前海桂湾片区前海鸿荣源中心
售楼处:400-993-0680 最新价格、政策行情、楼盘优惠信息等可咨询
  • 组团砍价

    人多力量大,团购更优惠

    立即报名
    279人已报名
  • 预约看房

    一对一服务,解答更详细

    立即报名
    167人已报名
楼盘详情
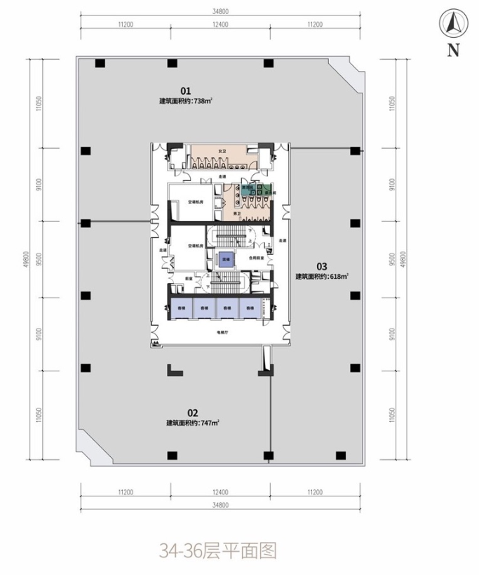
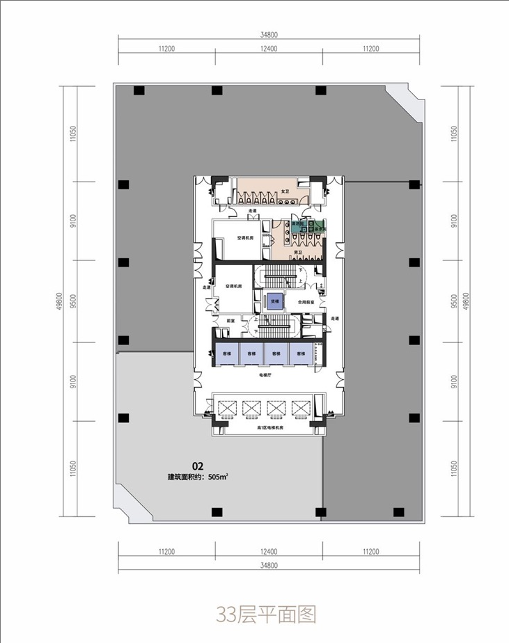
  • 主力户型:写字楼高区505-748㎡单位正在发售
  • 开  发  商: 鸿荣源集团
  • 开盘时间:2019年10月06日
  • 交房时间:2021年10月31日
  • 产权年限:40
  • 预售许可证: 暂无信息
楼盘动态
我们将以短信通知您全新楼盘动态,足不出户知房事
周边配套
337