城建云启大厦 在售 开盘通知
公园地产
均价: 房价待定
地址: 深圳市罗湖区金华街与红岭南路交叉口东南角
售楼处:400-993-0680 最新价格、政策行情、楼盘优惠信息等可咨询
  • 组团砍价

    人多力量大,团购更优惠

    立即报名
    279人已报名
  • 预约看房

    一对一服务,解答更详细

    立即报名
    167人已报名
楼盘详情
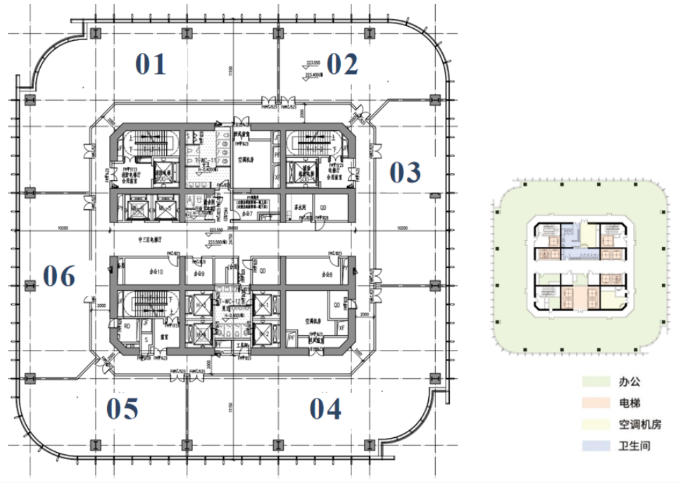
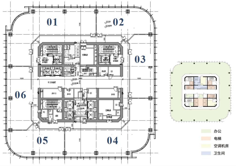
  • 主力户型:分户以300-600㎡为主,少量20-40㎡小房
  • 开  发  商: 深圳市城建置地发展有限公司
  • 开盘时间:2024年06月30日
  • 交房时间:2024年06月30日
  • 产权年限:40
  • 预售许可证: 深房许字(2024)罗湖003号
楼盘动态
我们将以短信通知您全新楼盘动态,足不出户知房事
周边配套
645